暮らす・過ごす

区画番号:1-8-14

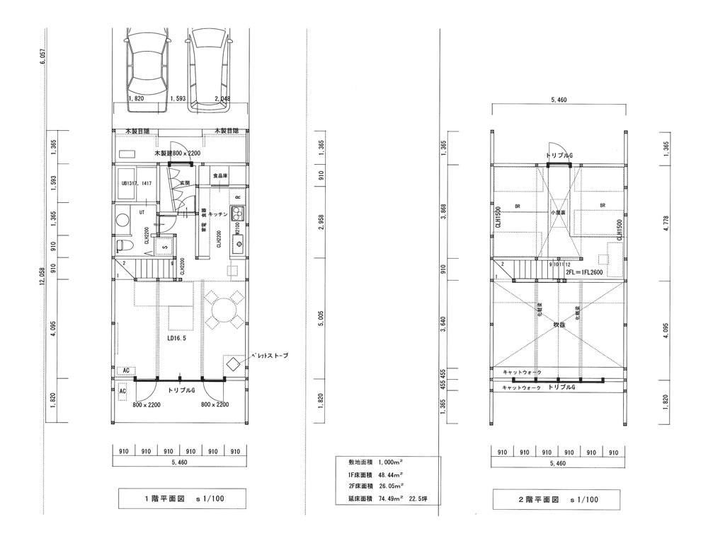
山梨での住宅・店舗・建築設計、高原リゾートの建築設計を手掛ける㈲スタジオアンビエンテのモデルプラン付。
【モデルプラン】建物…3,000万円,設計等諸費用…100万円,床暖ペレットストーブ…100万円(耐震等級2,断熱等級5)
土地500万円含む合計3,700万円+登記他諸費用 ※あくまでも参考プラン・参考価格(特別価格)となります。

※モデルプランの平面図はこちらのPDFをご覧ください。清里の森1-8-14 平面図(モデルプラン)
※物件情報の印刷は、こちらのPDFをご利用ください。清里の森1-8-14

区画番号 1-8-14
土地面積 1076.22㎡(325.5坪)
取引態様 媒介
土地賃料 215,496円(年額)
共益費 53,271円(年額)
価格 5,000,000円
所在地 山梨県北杜市高根町清里「清里の森」1-8-14
交通 清里の森管理センターまで,JR小海線・清里駅から徒歩約15分、車約5分。中央自動車道「長坂」,「須玉」ICから車で約25分。
土地
借地権旧法20年(普通賃借権)
地目山林
土地所有者山梨県
接面道路北側 6m
制限
都市計画都市計画区域外
建ぺい率20%
用途地域なし
容積率40%
高さ制限13m以下、2階建以下
伐採率25%以内
その他自然保護協定、北杜市景観条例、北杜市まちづくり条例、森林法
設備
電気東京電力
水道北杜市営水道
ガスプロパンガス(個別契約)
汚水合併浄化槽設置
諸費用
水道基本料950円(13mm)/月額(税別) ※要水道加入金
仲介手数料300,000円(税別)
浄化槽メンテナンス費※浄化槽の規模により算出
登記費用別途見積要
固定資産税清算-
管理会社 〒407-0301 山梨県北杜市高根町清里3545-1 ㈱清里の森管理公社 TEL/0551-48-3151 FAX/0551-48-3051

社団法人 山梨県宅地建物取引業協会会員
(株)清里の森管理公社
免許証番号 山梨県知事(9) 第1393号
山梨県北杜市高根町清里3545-1 TEL 0551-48-3151 FAX 0551-48-3051
年中無休 営業時間/8:30~17:30